Skip to main content

Condominio Townhouses
Las Lomas

Descubre un estilo de vida moderno en nuestros exclusivos townhouses, ubicados en el hermoso sector de Curauma, Valparaíso. Un lugar ideal para tu nuevo hogar.

Proyecto

En Condominio Townhouses Las Lomas, contamos con 6 exclusivos townhouses, ubicados en un sector residencial de Curauma, Valparaíso.

Nuestras casas modernas cuentan con espacios integrados que brindan comodidad y estilo a tu vida. Nuestro objetivo es proporcionar un entorno acogedor para que disfrutes de la tranquilidad y el confort de tu nuevo hogar.

Casas

Programa

Todas las unidades cuentan con:

  • 3 Dormitorios y 2 baños
  • Living, comedor y cocina integrados
  • Cocina equipada 
  • Baño de visita 
  • Dormitorio servicio o Home Office en primer piso con baño completo.
  • Lavadero en primer piso
  • Estacionamiento techado.

                                                    Townhouse 1   Precio lanzamiento!!!  3.790 UF

Piso 1

  • Acceso
  • Estacionamiento techado
  • Lavadero 
  • Dormitorio servicio con baño completo o Escritorio

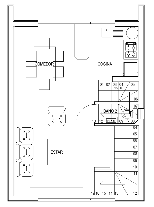
Piso 2

  • Living, comedor y cocina integrados 
  • Baño de visitas
  • Nivel de patio

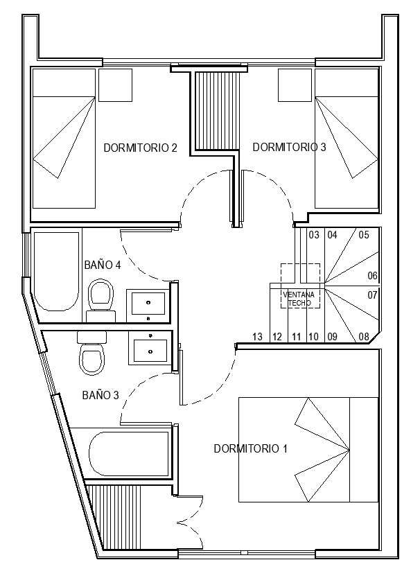
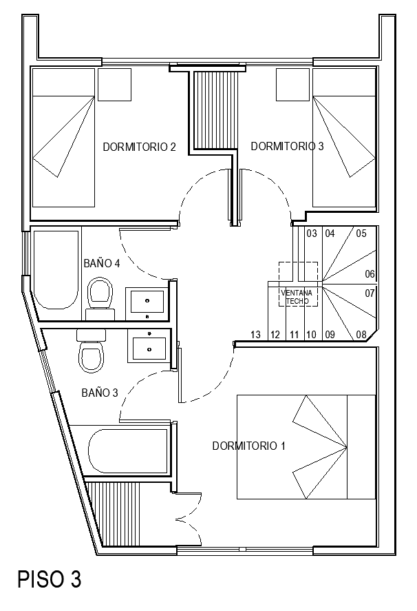
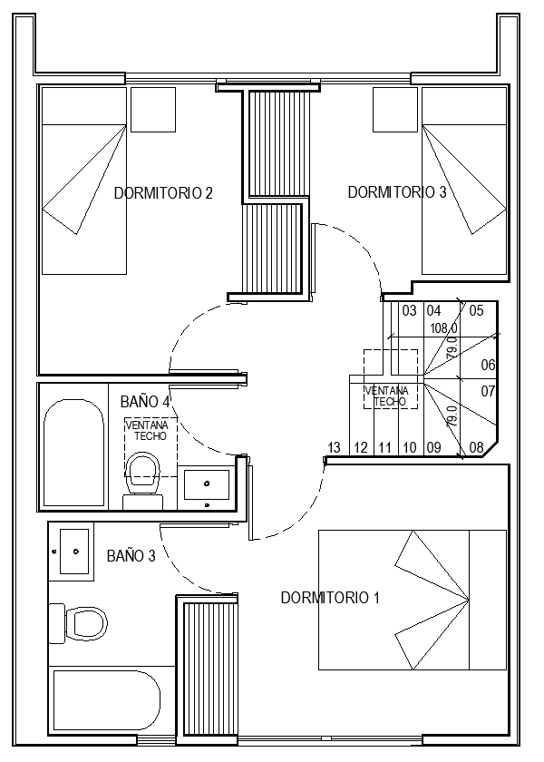
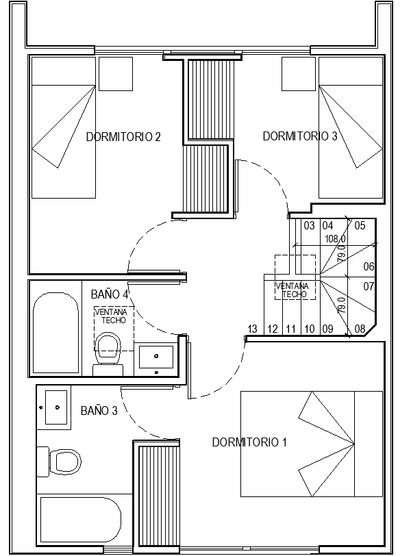
Piso 3

  • Dormitorio principal con baño en Suite (ventilación natural)
  • Baño completo para niños 
  • (ventilación natural)
  • 2 dormitorios para niños

                                                    Townhouses 2 y 3

Piso 1

  • Acceso
  • Estacionamiento techado
  • Lavadero 
  • Dormitorio servicio con baño completo o Escritorio

Piso 2

  • Living, comedor y cocina integrados 
  • Baño de visitas
  • Nivel de patio

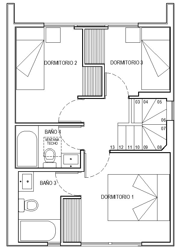
Piso 3

  • Dormitorio principal con baño en Suite 
  • (ventilación natural)
  • Baño completo para niños
  • 2 dormitorios para niños

                                                    Townhouses 4 y 5 

Piso 1

  • Acceso
  • Estacionamiento techado
  • Lavadero 
  • Dormitorio servicio con baño completo o Escritorio

Piso 2

  • Living, comedor y cocina integrados 
  • Baño de visitas
  • Nivel de patio

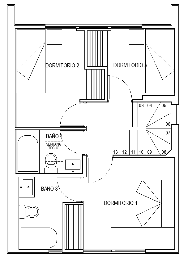
Piso 3

  • Dormitorio principal con baño en Suite 
  • (ventilación natural)
  • Baño completo para niños
  • 2 dormitorios para niños

* Las unidades presentadas en planta pueden tener orientación espejo

Ubicación

Curauma

Ubicado en el corazón del sector residencial de Curauma. A pasos de universidad, comercio, servicios y educación.